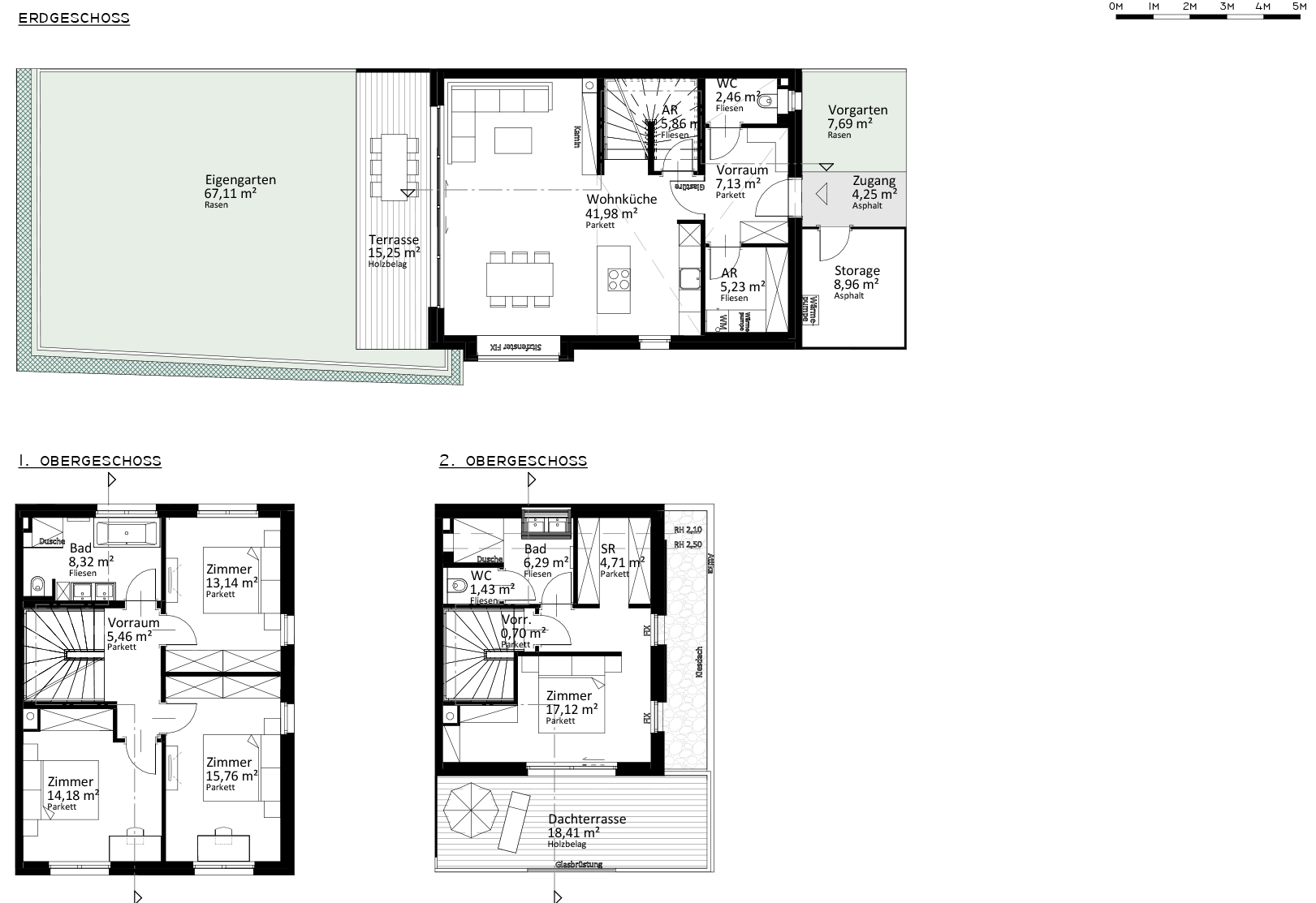
Grundstück 14, Haus 03
Raumprogramm
Großzügige Wohnküche
4 Schlafzimmer
2 Bäder mit WC
1 separates WC
2 Abstellräume
1 Storage
2 Stellplätze
| Erdgeschoss |
62,66 m²
|
|---|---|
| 1. Obergeschoss |
56,86 m²
|
| 2. Obergeschoss |
30,25 m²
|
| Gesamtfläche |
149,77 m²
|
| Zugang |
4,25 m²
|
|---|---|
| Vorgarten |
7,69 m²
|
| Terrasse |
15,25 m²
|
| Storage |
8,96 m²
|
| Eigengarten |
67,11 m²
|
| Dachterrasse |
18,41 m²
|
| Gesamtfläche |
121.68 m²
|
| Kaufpreis |
€ 686.000,-
|
|---|---|
| HWB |
25,04 kWh/m²a
|
| fGEE |
0,63
|