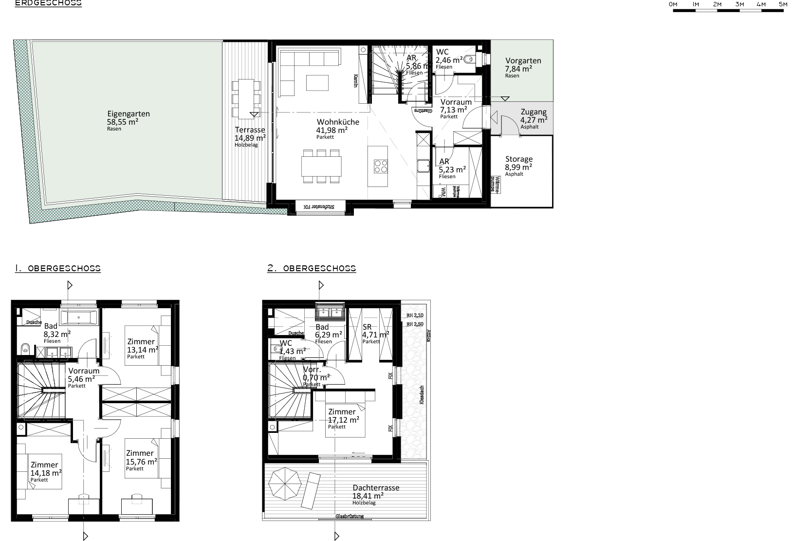
Grundstück 15, Haus 03
Raumprogramm
Großzügige Wohnküche
4 Schlafzimmer
2 Bäder mit WC
1 separates WC
2 Abstellräume
1 Storage
2 Stellplätze
| Erdgeschoss |
62,66 m²
|
|---|---|
| 1. Obergeschoss |
56,86 m²
|
| 2. Obergeschoss |
30,25 m²
|
| Gesamtfläche |
149,77 m²
|
| Zugang |
4,27 m²
|
|---|---|
| Vorgarten |
7,84 m²
|
| Terrasse |
14,89 m²
|
| Storage |
8,99 m²
|
| Eigengarten |
58,55 m²
|
| Dachterrasse |
18,41 m²
|
| Gesamtfläche |
112.95 m²
|
| HWB |
25,04 kWh/m²a
|
|---|---|
| fGEE |
0,63
|