Grundstück 12, Haus 02
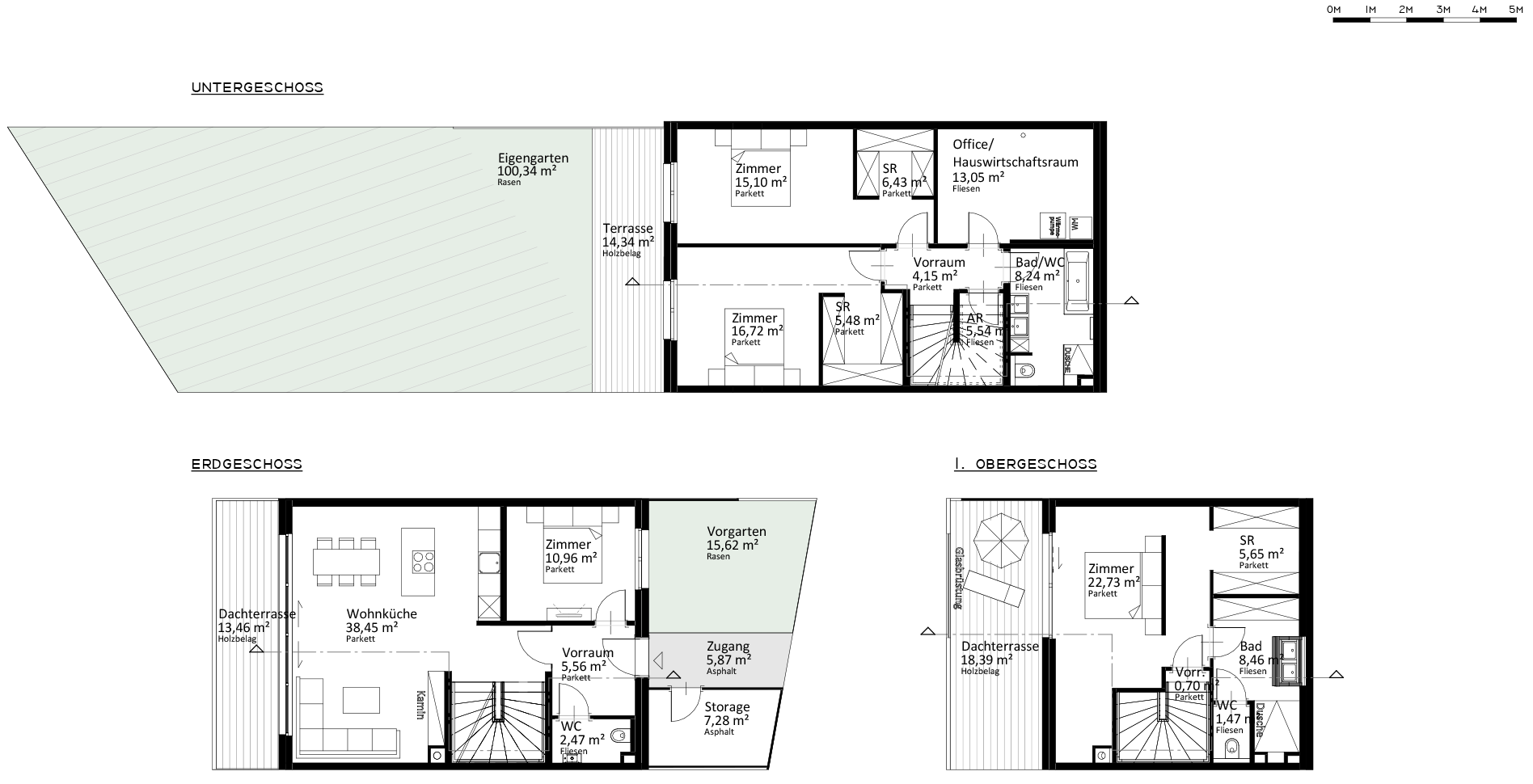
Raumprogramm
Großzügige Wohnküche
4 Schlafzimmer
2 Bäder mit WC
1 separates WC
2 Abstellräume
1 Storage
2 Stellplätze
| Untergeschoss |
74.71 m²
|
|---|---|
| Erdgeschoss |
57,44 m²
|
| 1. Obergeschoss |
39,01 m²
|
| Gesamtfläche |
171,16 m²
|
| Zugang |
5,87 m²
|
|---|---|
| Vorgarten |
15,62 m²
|
| Terrasse |
14,34 m²
|
| Storage |
7,28 m²
|
| Eigengarten |
100,34 m²
|
| Dachterrasse |
31,85 m²
|
| Gesamtfläche |
175.30 m²
|
| Kaufpreis |
€ 628.000,-
|
|---|---|
| HWB |
25,04 kWh/m²a
|
| fGEE |
0,63
|