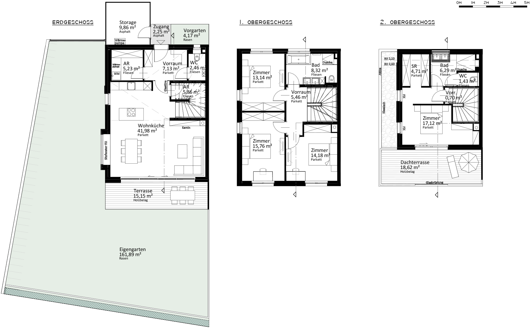
Grundstück 7, Haus 01
Raumprogramm
Großzügige Wohnküche
4 Schlafzimmer
2 Bäder mit WC
1 separates WC
2 Abstellräume
1 Storage
2 Stellplätze
| Erdgeschoss |
62,66 m²
|
|---|---|
| 1. Obergeschoss |
56,86 m²
|
| 2. Obergeschoss |
30,25 m²
|
| Gesamtfläche |
149,77 m²
|
| Zugang |
2,25 m²
|
|---|---|
| Vorgarten |
4,17 m²
|
| Terrasse |
15,15 m²
|
| Storage |
9,86 m²
|
| Eigengarten |
161,89 m²
|
| Dachterrasse |
18,62 m²
|
| Gesamtfläche |
211.90 m²
|
| Kaufpreis |
€ 687.000,-
|
|---|---|
| HWB |
25,04 kWh/m²a
|
| fGEE |
0,63
|